Aprašymas
ВТM Premium 11-300 vandens šildytuvai
BTM serijos vandens šildytuvai skirti efektyviam karšto vandens kaupimui buitiniam naudojimui ir idealiai tinka žemos temperatūros sistemoms, tokioms kaip šilumos siurbliai ir kondensaciniai katilai. Pagaminti iš anglinio plieno ir padengti aukštos kokybės keraminiu emaliu, tinkančiu geriamajam vandeniui.
Vandens šildytuvai turi DN 120 apžiūros flanšo angą. Šilumokaičiai pagaminti iš anglinio plieno. Didžiausias darbinis slėgis yra 0,6 MPa, temperatūra – 95 °C.
BTM vandens šildytuvai gaminami nuo 200 iki 500 litrų talpos su vientisa PU izoliacija, nuo 750 iki 1000 litrų – su nuimama izoliacija.
Žymėjimas: КНТ ВТ-PREMIUM-XY-V-WP-PU
КНТ ВТ-XY-V-GP-PS
BTМ - serija
- Х - viršutinių šilumokaičių skaičius
- Y - apatinių šilumokaičių skaičius
- V - standartinis dydis
- WP-PU - balta izoliacijos spalva, kieta poliuretano putų izoliacija
- GP-PS - pilka izoliacijos spalva, nuimama izoliacija
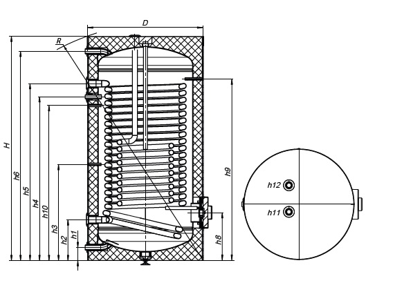
Techninė Informacija – Modelis 300 (ВТMP11300WPPU)
| Kriterijus | Reikšmė |
|---|---|
| Šalto vandens padavimo vamzdis h1 | 1" / 83 mm |
| Išorinio šilumokaičio grįžtamasis vamzdis h2 | 1" / 258 mm |
| Sausoji mova h3 | 608 mm |
| Cirkuliacijos vamzdis h4 | 3/4" / 1035 mm |
| Išorinio šilumokaičio padavimo vamzdis h5 | 1" / 1118 mm |
| Karšto vandens paėmimo vamzdis h6 | 1" / 1323 mm |
| Inspekcinis flanšas / kaitinimo elemento įvadas h8 | 303 mm |
| Sausoji mova h9 | 1148 mm |
| Mova h10 | 980 mm |
| Vidinio šilumokaičio grįžtamasis vamzdis h11 | 1" / 1424 mm |
| Vidinio šilumokaičio padavimo vamzdis h12 | 1" / 1424 mm |
| Vidinio / išorinio šilumokaičio tūris | 7,2 / 30,0 l |
| Vidinio / išorinio šilumokaičio plotas | 1,1 / 4,0 m² |
| Vidinio / išorinio šilumokaičio galia (70/10/45°C) | 26 / 92 kW |
| Pastovus vidinio / išorinio šilumokaičio našumas | 640 / 2300 l/h |
| Šilumokaičių darbinis slėgis | 1 MPa |
| Maksimalus bako darbinis slėgis | 0,6 MPa |
| Bendras aukštis H | 1424 mm |
| Skersmuo be izoliacijos d / su izoliacija D | 603 / 735 mm |
| Bendras tūris | 333 l |
| Nominalus tūris | 289 l |
| Magnio anodo masė | 1,7 kg |
| Magnio anodų ilgis (pagrindinis / papildomas) | 850 / 400 mm |
| Vidinis katilo paviršiaus plotas | 7,78 m² |
| Masė | 133 kg |
| Pasvirimo spindulys R | 1595 mm |
| Kaitinimo elemento ilgis | 580 mm |
| Energijos efektyvumo klasė | A |










